Trong nhiều trường hợp, quy định về chiều cao xây dựng không cho phép chủ đầu tư xây nhà với số tầng như mong muốn. Khi đó, xây tầng lửng chính là giải pháp tối ưu để mở rộng diện tích sử dụng mà vẫn không phạm luật.
Tầng lửng là một thuật ngữ khá quen thuộc trong xây dựng dân dụng nhưng không phải ai cũng hiểu rõ tầng lửng là gì cũng như nắm được các quy định của pháp luật liên quan đến xây tầng lửng. Cùng tìm hiểu những thông tin quan trọng về tầng lửng, những lưu ý không nên bỏ qua khi thiết kế tầng lửng trong bài viết này nhé!
Tầng lửng là gì?
Tầng lửng (trong tiếng Anh là mezzanine) hay còn gọi là gác lửng hay gác xép, được định nghĩa là tầng trung gian trong thiết kế kiến trúc của một ngôi nhà.

Xây tầng lửng là giải pháp mở rộng diện tích sử dụng mà vẫn không vi phạm quy định vào số tầng tối đa của công trình nhà ở.
Không giống như các tầng khác trong nhà, tầng lửng không được tính là một tầng chính thức. Mỗi công trình chỉ được phép có một tầng lửng và tầng này không tính vào số tầng của công trình. Trong nhiều trường hợp, quy định về chiều cao xây dựng không cho phép chủ đầu tư xây nhà với số tầng như mong muốn. Khi đó, xây tầng lửng chính là giải pháp tối ưu để mở rộng diện tích sử dụng mà vẫn không phạm luật. Nói một cách khác, xây tầng lửng là cách “ăn gian” thêm diện tích xây dựng để sinh hoạt rộng rãi, thuận tiện hơn.
Công năng sử dụng của tầng lửng
Tầng lửng có công năng sử dụng khá đa dạng. Trường hợp đủ diện tích, có thể đưa hết các không gian chức năng của tầng trệt lên tầng lửng như phòng khách, bếp ăn, đặc biệt là phòng sinh hoạt chung.

Nếu diện tích sàn không được rộng lắm mà gia chủ cần mặt bằng trệt để kinh doanh hoặc làm nơi để xe, nhà kho thì nên làm tầng lửng để có nơi tiếp khách trong vẫn quan sát được việc kinh doanh, mua bán ở bên dưới. Với nhiều ngôi nhà, có thể thiết kế tầng lửng thành một phòng ngủ của gia chủ. Trong trường hợp cần mặt bằng rộng mà công trình bị giới hạn chiều cao, xây tầng lửng cũng là giải pháp phù hợp nhất để gia tăng diện tích sử dụng.
Các quy định về xây tầng lửng
Đối với nhà ở riêng lẻ, tầng lửng không được tính vào số tầng của công trình nếu diện tích sàn tầng lửng không vượt quá 65% diện tích sàn xây dựng của tầng ngay bên dưới.
Tuy nhiên, ở một số quận thuộc TP.HCM như Quận 10, Quận 8, có thể xin phép xây tầng lửng với diện tích lên đến 80% diện tích sàn tầng dưới. Tùy từng khu vực và lộ giới sẽ có quy định khác nhau. Lộ giới đường dưới 3,5m thì không được phép xây dựng tầng lửng.
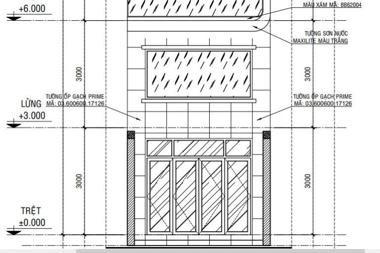
Về chiều cao, luật quy định chiều cao tối đa của tầng trệt và lửng là 6m so với cao độ vỉa hè. Chiều cao tối thiểu là 5,6m, tầng trệt 2,8m và tầng lửng 2,8m. Tuy nhiên, sau khi đóng trần thạch cao khung chìm chống ẩm, chiều cao thực tế của tầng chỉ còn khoảng 2,4m. Nhà có tầng lửng nên chiều cao của các tầng khác cũng bị hạn chế. Thông thường, tầng trệt có thể cao đến 4m, lầu 1, lầu 2 có thể cao 3,6-3,8m nhưng nếu có tầng lửng, lầu 1, lầu 2 chỉ cao tối đa 3,4m mà thôi.

Tầng trệt và tầng lửng có thể cao tối đa 6m so với cao độ vỉa hè.
Cách tính chi phí xây tầng lửng
Tầng lửng được chia thành hai phần, một là diện tích sàn sử dụng, còn lại là diện tích thông tầng của tầng trệt và tầng lửng. Vì vậy, sẽ có cách tính chi phí xây dựng khác nhau cho hai phần này theo diện tích xây dựng.
Trong xây dựng dân dụng, diện tích sàn có mái che trong nhà sẽ được tính 100% diện tích. Với diện tích thông tầng, nếu lớn hơn 8m2 sẽ tính 50% diện tích, dưới 8m2 sẽ tính như sàn bình thường. Cộng diện tích sàn và diện tích thông tầng sẽ ra diện tích xây dựng của tầng lửng.
Diện tích thông tầng của tầng lửng thường lớn hơn 8m2 nên chi phí xây dựng là 50% diện tích. Phần thông tầng này tuy rỗng nhưng vẫn xây tường bao, có hệ kết cấu sắt thép riêng nên được xem là khu vực có hao phí xây dựng. Sàn tầng lửng sẽ có chi phí thấp hơn các tầng khác trong nhà.
Một số kiểu bố trí tầng lửng
Tầng lửng có rất nhiều cách bố trí, thiết kế khác nhau tùy theo thiết kế tổng thể của ngôi nhà cũng như ý muốn của gia chủ. Có thể sử dụng lan can kính cường lực, lan can sắt mỹ nghệ, cửa kính để ngăn phòng hoặc đưa một phần ban công ra bên ngoài,… Dưới đây là một số mẫu thiết kế tầng lửng đẹp, công năng đa dạng để bạn đọc cùng tham khảo:

Sử dụng vách ngăn CNC để đảm bảo an toàn cho tầng lửng.
Đèn thả trần tạo điểm nhấn tô điểm không gian phòng khách ở tầng trệt và khu vực tầng lửng.
Tầng lửng có lan can sắt hoa văn cổ điển, sang trọng.
Theo thanhnienviet
Nhận xét
Đăng nhận xét